Korporaal & Bertels maakt gebruikt cookies om de website naar behoren te laten werken, om functies voor social media te bieden en om onze website te analyseren. Op onze website kun je ons Cookiebeleid en Privacybeleid vinden.

Cartesiusstraat 91 D
2562 SC Den Haag - Regentessekwartier

Kenmerken

Prijs
€ 345.000 k.k.
Wijk
Regentessekwartier
Locatie
In woonwijk
Postcode
2562 SC Den Haag
Woningtype
Benedenwoning
Bouwjaar
1904
Soort bouw
Bestaande bouw
Tuin
Ja, Patio/atrium, Noordoost, 308×229cm
Parkeren
Openbaar parkeren, Parkeervergunning
Kamers
3
Slaapkamers
2
Badkamers
1
Oppervlakte
64m²
Inhoud
238m³
Oplevering
In overleg

Stel een vraag   Download Brochure


Deel op  

Omschrijving

****FOR ENGLISH SEE BELOW****

In het Regentessekwartier gelegen parterre appartement met kelder/souterrain welke in 2024 inpandig compleet gerenoveerd is met een ruime slaapkamer en een 2e slaapkamer c.q. kantoorkamer in de kelder/souterrain. Tijdens de verbouwing zijn er energiebesparende maatregelen genomen waardoor het een energielabel A+ heeft! Het appartement is gelegen op korte afstand van de winkels van de Weimarstraat en het Regentesseplein. De woning zelf is voorzien van kunststof kozijnen met dubbel glas. De Vereniging van Eigenaren is actief en wordt professioneel beheerd. Tevens op korte afstand gelegen van diverse voorzieningen zoals aansluitingen van het openbaar vervoer en diverse scholen. Groen-, sport- en recreatievoorzieningen zijn op enkele minuten fietsen bereikbaar. Met de fiets bent u binnen 10 minuten in het centrum van Den Haag.

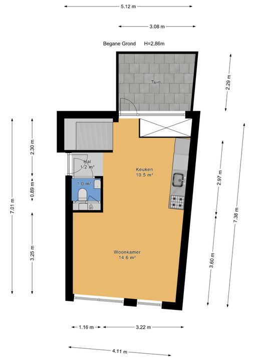
De indeling van het appartement is als volgt;

Toegang via een gemeenschappelijke entree met de vaste kasten ten behoeve van de meters voor gas- en elektra, entree van het appartement, toiletruimte met een wandcloset en een fonteintje alsmede de opstelplaats van de cv-ketel, woonkamer met een open keuken voorzien van een inductie kookplaat, een rvs-recirculatie kookplaat, een rvs-spoelbak, een oven alsmede een koel-/vries combinatie, toegang naar de patio. Vanuit de woonkamer is middels een vaste trap het souterrain bereikbaar. In het souterrain is er een vaste kast met de aansluiting voor de wasmachine, een slaap/werkkamer met ruimte onder de trap en een koekoek met een kunststof raam, een slaapkamer aan de voorzijde met 2x een koekoek en een pomp tbv de afvoer naar het (hoofd)riool en een inpandige luxe badkamer met een inloopdouche, een vaste wastafel met meubel en een elektrische design radiator.

Bijzonderheden:

* eigen grond
* gebruiksoppervlakte wonen ca. 64 m²
* actieve VVE, bijdrage thans € 44,80 per maand
* verwarming middels eigen cv-installatie
* onderhoud intern goed
* kleine patio bereikbaar vanuit de woonkamer
* slaapkamers en badkamer gesitueerd in het souterrain
* gevelkozijnen uitgevoerd in kunststof met dubbel glas HR++
* energielabel A+
* origineel bouwjaar complex 1904
* verbouwingsjaar van het complex en het appartement 2024
* gemeenschappelijke entree op de begane grond
* aanvullende verkoopvoorwaarden van toepassing

Interesse in dit leuke en recente gemoderniseerd appartement....? Schakel direct uw eigen NVM-aankoopmakelaar in.
Uw NVM-aankoopmakelaar komt op voor uw belang en bespaart u tijd en zorgen.

Adressen van collega NVM-aankoopmakelaars in Haaglanden vindt u op Funda.

Located in the Regentessekwartier ground floor apartment with cellar/basement which was completely renovated in 2024 with a spacious bedroom and a 2nd bedroom or office room in the cellar/basement. During the renovation, energy-saving measures were taken so that it has an energy label A+! The apartment is located a short distance from the shops of the Weimarstraat and the Regentesseplein. The apartment has plastic window frames with double glazing. The Owners' Association is active and professionally managed. Also located a short distance from various facilities such as public transport connections and various schools. Green, sports and recreational facilities are a few minutes by bike. You can reach the center of The Hague within 10 minutes by bike.

The layout of the apartment is as follows;

Access via a communal entrance with the fixed cupboards for the meters for gas, water and electricity, entrance of the apartment, toilet room with a wall closet and a sink as well as the location of the central heating kettle, living room with an open kitchen with an induction hob, a stainless steel recirculation extracter hood, a stainless steel sink, an oven and a fridge-/freezer, access to the patio. The basement is accessible from the living room via a staircase. In the basement there is a closet with the connection for the washing machine, a bedroom/study with space under the stairs and a cuckoo with a plastic window frame, a bedroom at the front with two cuckoos and a pump for the drain to the (main) sewer and an indoor luxury bathroom with a walk-in shower, a washbasin with furniture and an electric design radiator.

Details:

* own ground
* Usable residential area approx. 64 m²
* active VVE, contribution currently € 44.80 per month
* heating through own central heating system
* good internal maintenance
* small patio accessible from the living room
* bedrooms and bathroom located in the basement
* façade frames made of plastic with double glazing HR++
* energy label A+
* original year of construction complex 1904
* renovation year of the complex and the apartment 2024
* communal entrance on the ground floor
* Additional terms and conditions of sale apply

Interested in this nice and recent modernized apartment....? Engage your own NVM purchase broker immediately.
Your NVM purchase broker stands up for your interests and saves you time and worries.

Addresses of fellow NVM buying agents in Haaglanden can be found on Funda.

Bij kantoor


Locatie

[ { "address": "Cartesiusstraat 91", "zipCode": "2562 SC", "city": "Den Haag", "lat": 52.0734624, "lng": 4.2822006, "heading": 0, "pitch": 0 } ]

Kenmerken

Prijs
€ 345.000 k.k.
Status
Beschikbaar
Oplevering
In overleg

Bouw

Soort appartement
Benedenwoning
Woonlaag
1
Soort bouw
Bestaande bouw
Bouwjaar
1904
Onderhoud binnen
Goed
Onderhoud buiten
Goed

Oppervlakten en inhoud

Woonoppervlakte
64m²
Inhoud
238m³

Indeling

Aantal kamers
3
Aantal slaapkamers
2
Aantal badkamers
1
Aantal verdiepingen
2
Voorzieningen
Glasvezel kabel, Mechanische ventilatie, TV-Kabel

Energie

Energielabel
A+
Warm water
C.V.-ketel
Verwarming
C.V.-ketel
Ketel
Remeha (2023, Combi-ketel, Eigendom)

Buitenruimte

Ligging
In woonwijk
Tuin
Patio/atrium
Patio/atrium
Noordoost, 7m², 308×229cm

Garage

Heeft u interesse in deze woning?

Uw bericht is naar ons verzonden. Wij nemen zo snel mogelijk contact met u op.

Er is iets mis gegaan met het versturen van het formulier.
Controleer of u alle velden (goed) heeft ingevoerd en probeer het nog een keer.

Vergelijkbare woningen

Verkocht
John Rädeckerkade 13
2552 WP Den Haag
€ 295.000 k.k.
86m² 3 kamers
Verkocht
Q.A. Nederpelstraat 180
2552 HG Den Haag
€ 375.000 k.k.
96m² 4 kamers
Verkocht
Columbusstraat 186 W
2561 AT Den Haag
€ 300.000 k.k.
74m² 3 kamers
Verkocht
Louis Davidsstraat 293
2551 EH Den Haag
€ 325.000 k.k.
82m² 3 kamers